首页
关于我们
工匠积分查询
资讯
工匠证书查询
红黑榜
建房信息查询
培训竞赛
代建
登录
资讯
提供农村建房相关政策法规及新闻资讯等。
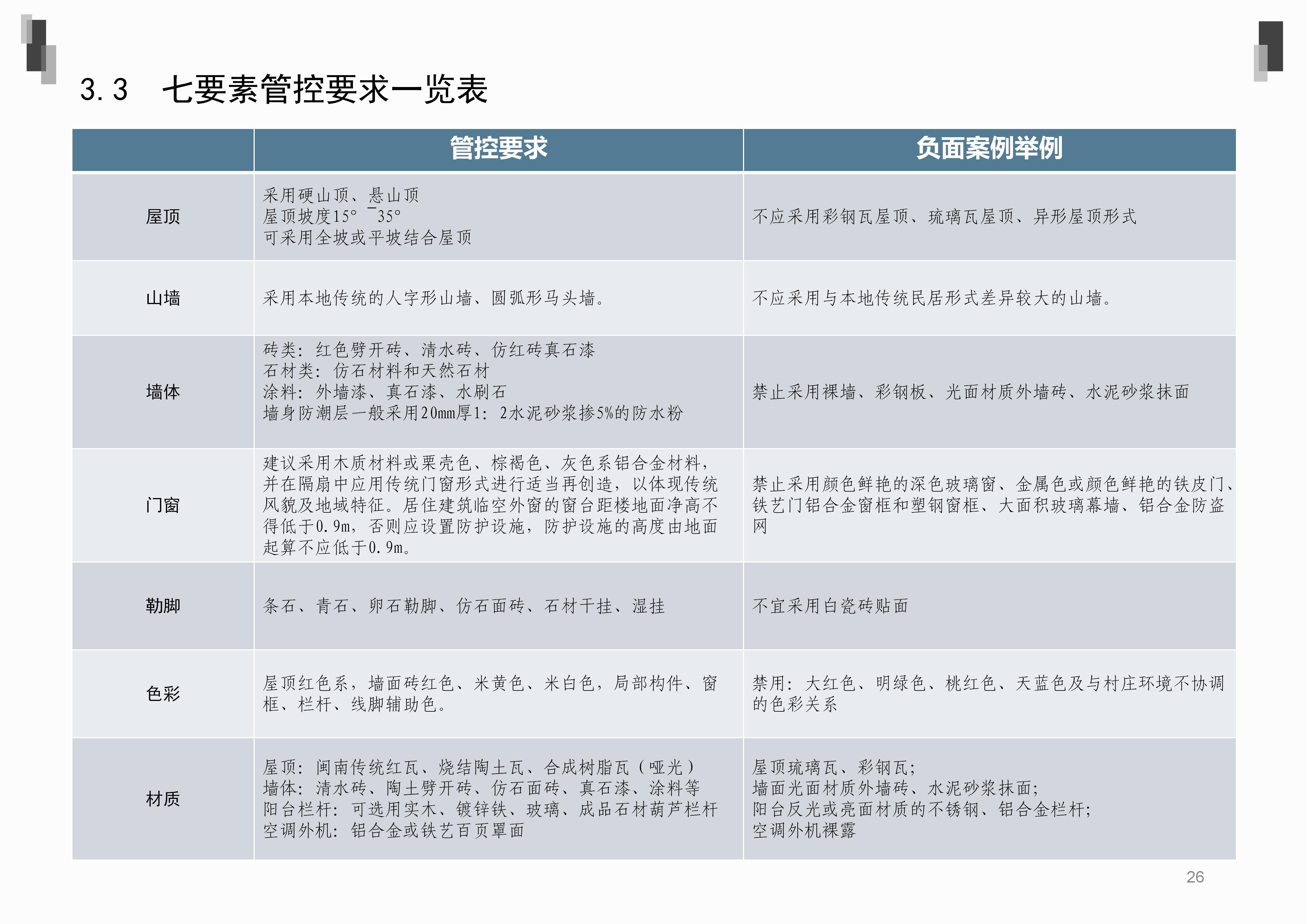
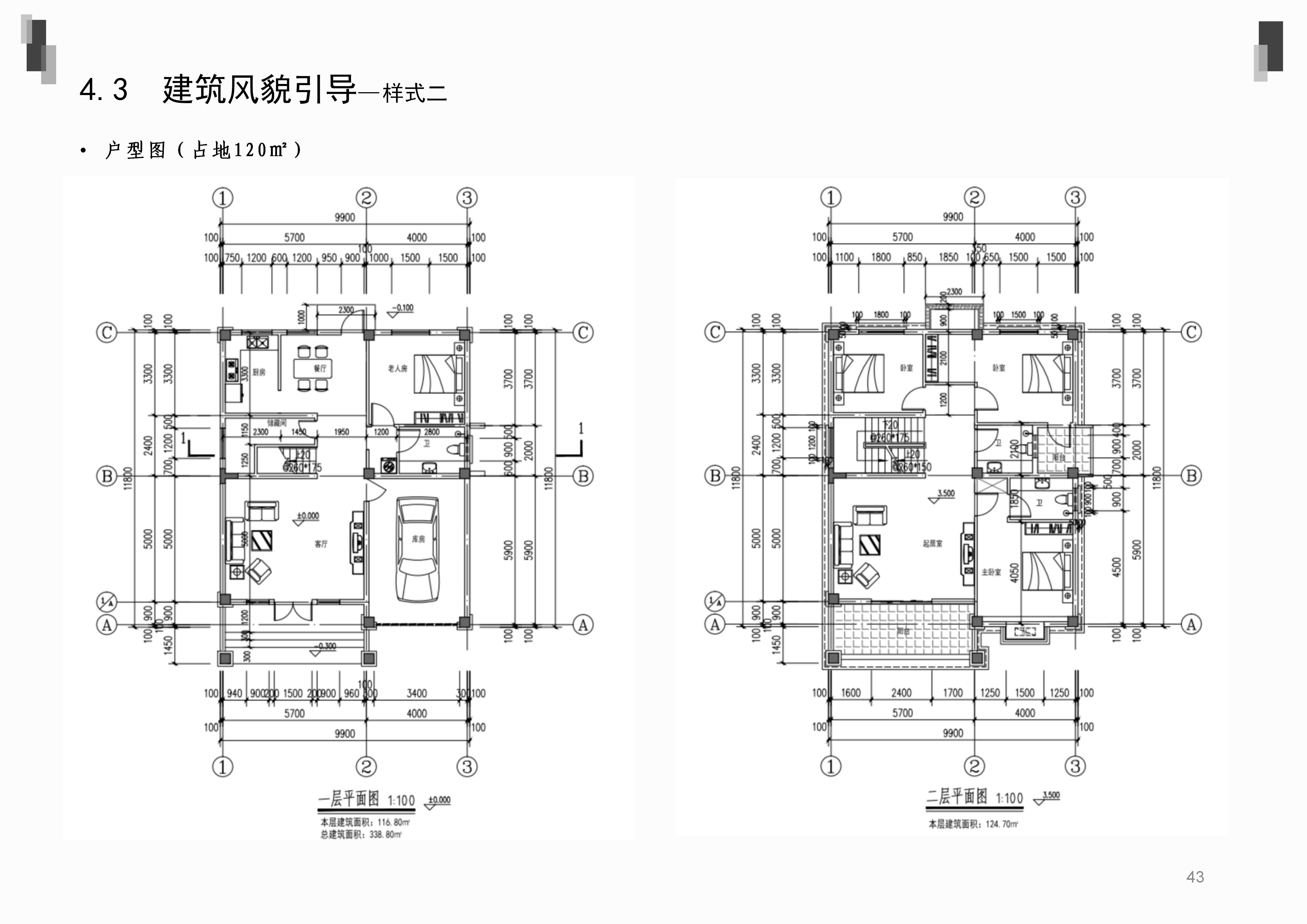
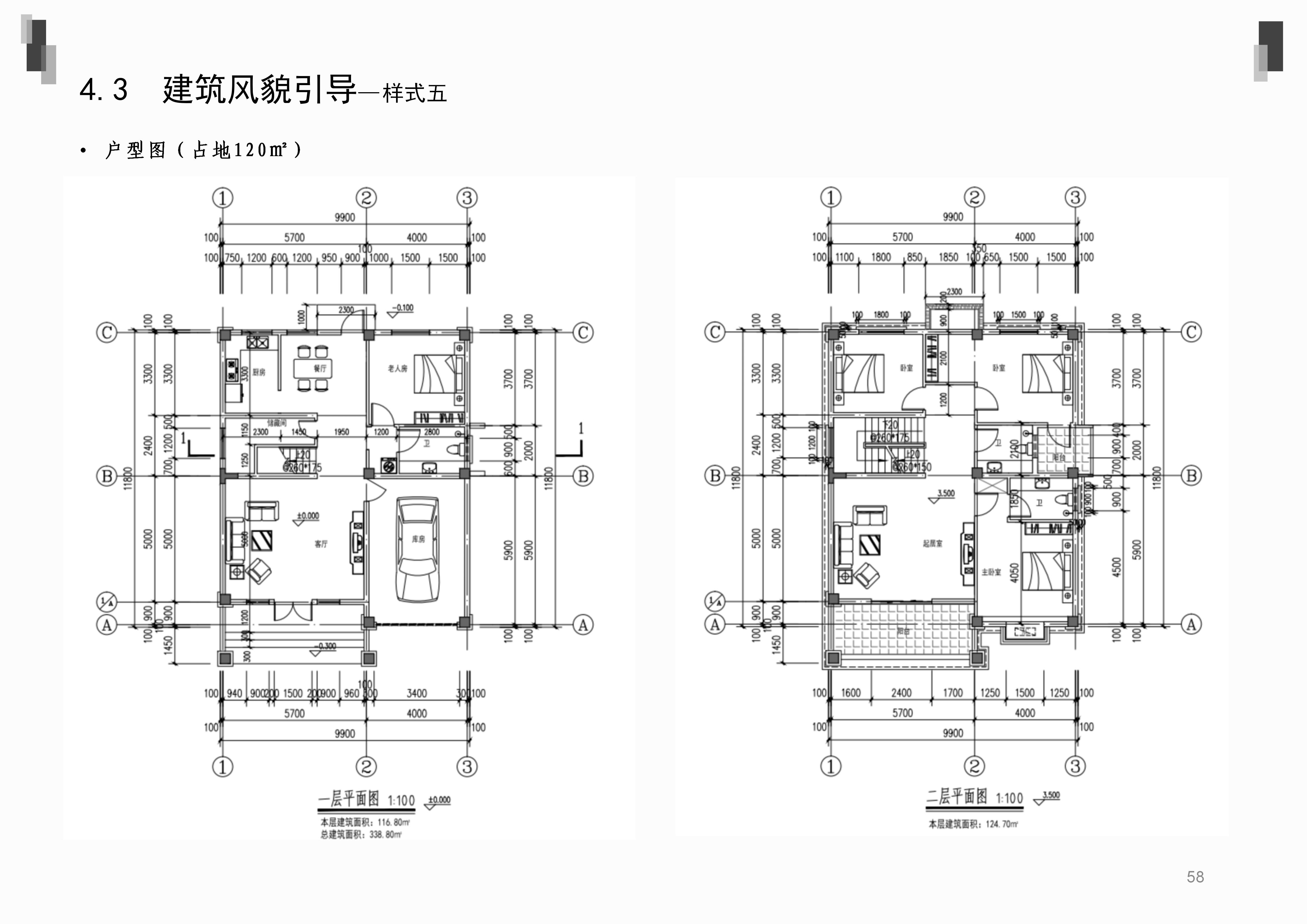
泉港区农村住宅建设立面图集
发表时间2025-06-01